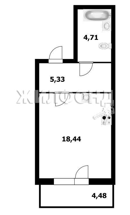
1 комн. квартира по ул. Писарева. Общей площадью: 28.48 кв.м, продажа квартир Новосибирск, N 85268590

Реклама
Квартиры Новосибирск, Более месяца назад

1 комн. квартира по ул. Писарева. Общей площадью: 28.48 кв.м.

В продаже 1-ком квартира-студия в новом доме ЖК на Писарева от надежного застройщика
Отличный вариант в качестве первого жилья для молодых людей или под сдачу с гарантированным доходом от аренды, ведь рядом находится несколько ВУЗов.
Окна студии выходят на улицу Писарева. Прекрасный вид На Оперный Театр и весь центр города!
Коротко о доме:
- Застекленные балконы и лоджии
- Подземный паркинг
- Бесшумные скоростные лифты , а их 4, в том числе, спускающиеся в парковку
- Высота потолков типового этажа 2,7 м.
- Горизонтальная разводка отопления
- Огороженный двор
- Помещение для консьержа.
- Детские площадки


Возможен обмен на вашу недвижимость.

При звонке, пожалуйста, сообщите номер варианта -

JV001054125866 [#3321998#] BuyReklama.ru

Сделка:Продам
Общая S, м2:28 /
Жилая S, м2:18.44 /
Этаж:14 /
Этажей в доме:25
Адрес:Писарева улица, д.125
Цена:3800000,00