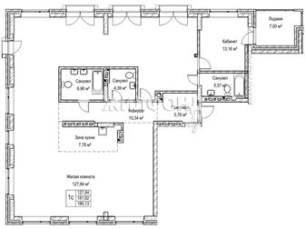
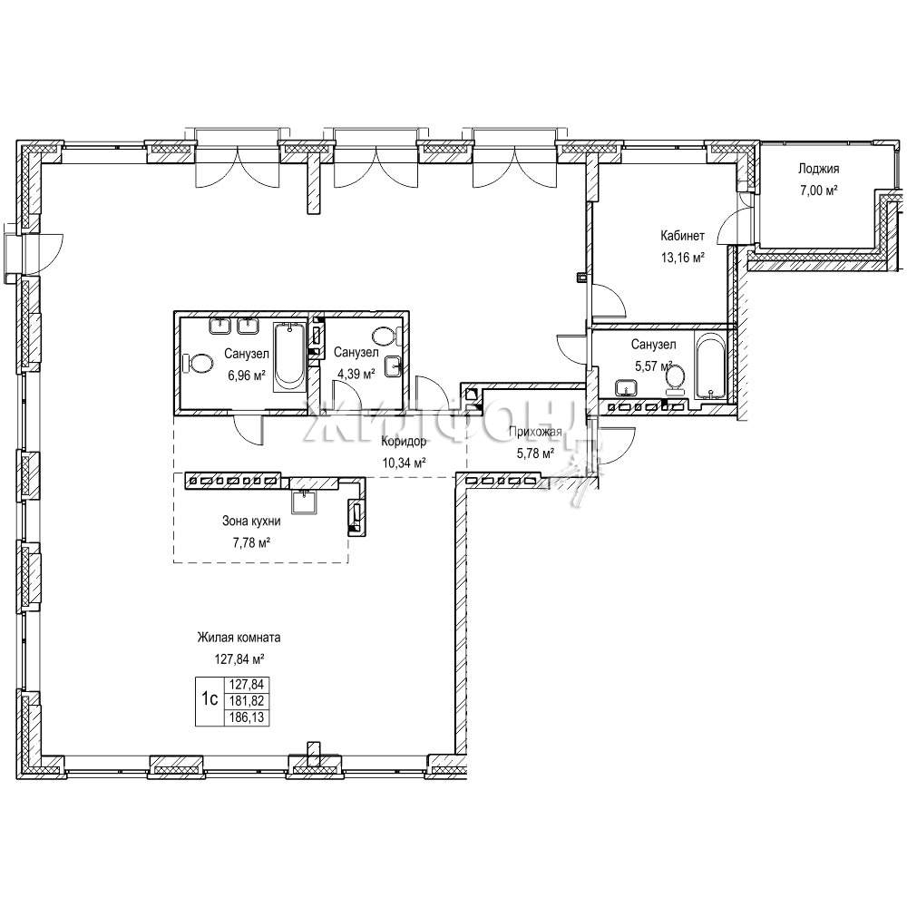
1 комн. квартира по ул. Ядринцевская. Общей площадью: 181.80, продажа квартир Новосибирск, N 85210326

Реклама
Квартиры Новосибирск, Более месяца назад

1 комн. квартира по ул. Ядринцевская. Общей площадью: 181.80 кв.м.

Ядринцевский квартал - жилой комплекс повышенного комфорта в самом центре города. Помимо ставших привычными двора без машин, охраняемой территории и уникальной архитектурной композиции Ядринцевский квартал порадует вас уникальными планировками квартир.
Повышенный комфорт в доме:
просторные планировки. ,
французские окна. ,
кирпичные стены. ,
бесшумные лифты. ,
внутренний двор без машин. ,
круглосуточная охрана и видеонаблюдение. ,
подземный двухуровневый паркинг.
Кроме подземного паркинга, для жильцов предусмотрены индивидуальные хозяйственные кладовые.
Дом расположен возле Центрального парка, в пешей доступности находятся основные социально-значимые объекты:
метро Площадь Ленина. ,
ТЦ Аура. ,
стадион Спартак. ,
поликлиника №1. ,
гимназия №1. ,
высшие учебные заведения (НГУЭУ, НГУАДИ, НГМУ) . ,
детские сады.


Возможен обмен на вашу недвижимость.

При звонке, пожалуйста, сообщите номер варианта -

JV000101013383 [#3359368#] BuyReklama.ru

Сделка:Продам
Кол-во комнат::1-комн.
Общая S, м2:181 /
Жилая S, м2:127.84 /
Кухни S, м2:7.78 м2
Этаж:7 /
Этажей в доме:9
Адрес:Ядринцевская улица, д.54
Цена:29100000,00